Property Details
2/26 Melbourne Street Murrumbeena, VIC 3163
LeasedDescription
2/26 Melbourne Street Murrumbeena
Townhouse - Murrumbeena VIC
2 Bedroom Townhouse in Prime Murrumbeena Location
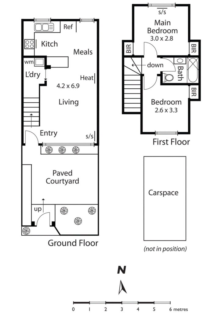
Discover this beautifully presented 2 bedroom, 1 bathroom townhouse in the heart of Murrumbeena. Located in a highly convenient pocket of Murrumbeena, just a short stroll to the train station, cafés and village-style shops, and minutes by car to Chadstone Shopping Centre and freeways. Featuring :
- Light filled open plan living/dining area
- Well equipped kitchen with ample storage spaces
- 2 generous bedrooms, both with built-in robes.
- Bathroom with bath and walk in shower
- Low maintenance paved front courtyard
- Single car space
- Split-systems heating/cooling
Disclaimer: While every effort has been made to ensure the accuracy of the information provided, photos and descriptions are for general guidance only and may differ from the actual property. Interested parties should conduct their own inspection prior to leasing.
PLESE NOTE: Open for Inspection Times and Property Availability are subject to change or cancellation without notice.
Property Features
- Townhouse
- 2 bed
- 1 bath
- Toilet
- Open Spaces
- Furnished













